Elegant brutalisme

PI 59 KANTOOR TRANSFORMATIE – PRINSES IRENESTRAAT 59, AMSTERDAM

Titelfoto: Betonnen gevelkader met opengewerkte hoeken (foto: Aiste Rakauskaite)

Auteur: V8 Architects

PI59 voldoet bij oplevering al aan de eisen van het klimaatakkoord van Parijs voor 2040. Het brutalistisch bouwwerk is in korte tijd naar ontwerp van V8 Architects omgebouwd tot een eigentijds en stijlvol kantoor, dat aan alle moderne duurzaamheids- en gebruikseisen voldoet. De betonnen gevel is vervangen door een meer open gevel met betonkader en gebogen glas. Door het betonnen casco te behouden, kon de milieubelasting beperkt blijven. Naar verwachting wordt het kantoorpand bekroond met de BREEAM Excellent en Wired Score certificaten.

De transformatie resulteert in een open, ruim ogend en licht, modern kantoorpand (foto: Milan Hofmans)

Oud en nieuw in cadans

De bestaande betonnen gevel, met haar uitgesproken brute karakter, wordt vervangen door een gevel die in veel aspecten het diapositief is van de bestaande gevel. Een open raster maakt het gebouw toegankelijk in plaats van gesloten. Grote ramen met gebogen glas maken het gebouw transparant in plaats van donker. Bronskleurige ornamenten maken het gebouw verfijnd in plaats van grof. Gepolijst beton met natuursteen toeslag maakt het gebouw levendig in plaats van doods. “Bij al deze elementen zorgen we ervoor dat het solide karakter een echo vormt van het oorspronkelijke karakter. Elegant brutalisme,” aldus Michiel Raaphorst van V8 Architects.

Transformatie

De laatste functie van het gebouw was die van een internationale school. In de jaren ’70 was PI59 een van de eerste kantoorpanden op de Amsterdamse Zuidas. Het betonnen casco van toentertijd maakt nu nog onderdeel uit van de vorm en de structuur van het gebouw, echter zijn er tijdens de transformatie vele raampartijen aan toegevoegd, waardoor het gebouw van zes verdiepingen grotendeels verlicht wordt door natuurlijk daglicht. Het gebouw telt na de uitbreiding 18.750 verhuurbare vierkante meter, er is 35% vloeroppervlak aan het gebouw toegevoegd op het dak en aan de achterkant van het gebouw.

Vrije indeelbaarheid door de kolommenstructuur en de ruime mate van daglichttoetreding maken onderdeel uit van de kwaliteit voor toekomstwaarde (plattegrond: V8 Architects)

Ontwerpen toekomstwaarde

“De verborgen kwaliteit van een ‘boutique’ kantoor is maximaal benut door het maken van grote vloeren en veel visuele verbindingen dwars door het gebouw,” licht Michiel Raaphorst toe. “PI59 is hierdoor een uitermate comfortabele werkomgeving geworden. De grote hoeveelheid daglicht, goede routing, frisse lucht, flexibele indeelbaarheid en variatie in ruimtetypologie bieden voor alle soorten activiteiten de beste condities.”

Het betonnen casco was al gestuukt en niet direct bruikbaar als schoonbeton. Mede omdat een ruw betonnen casco niet paste bij de gewenste uitstraling, is ervoor gekozen om de kolommen in het interieur van strak stucwerk te voorzien.

Visuele verstrooiing

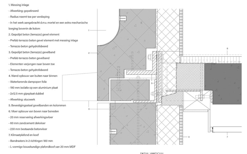
“Met een tactiele detaillering zorgen we voor een tijdloze architectuur, waarbij ambacht en innovatie hand in hand gaan,” vindt Michiel Raaphorst. “Daarbij hebben we ‘visuele verstrooiing’ toegepast: Zo zijn in de kolommen messing uitsneden gemaakt die naar boven toe breder worden. De kolommen zelf verjongen juist in opwaartse richting, en de vinnen op de hogere verdiepingen staan steeds schuiner naar beneden toe.”

Voor het beton werd een witte portlandcement gebruikt die snel de benodigde ontkistingssterkte ontwikkelt en tevens zorgt voor een zeer grote uniformiteit in lichte kleur bij alle elementen. Het betonmengsel bevat voor zowel het zand als de grove fractie een Noors wit marmer. Een contrasterende blauwgrijze korrel (ook een marmer soort) is in de massa gemengd in het beton. De grootte van deze “strooikei” zit tussen de 25 en de 40 mm. Door de gevel te polijsten wordt het toeslagmateriaal zichtbaar en ontstaat de terrazzo-look.

De gepolijst betonnen gevel vormt een kader om de grote ramen, waarbij de inkassing van de verjonging van de kolommen is verfraaid door een bronskleurige schaal (foto: Aiste Rakauskaite)

Verfijnde details

De betonnen elementen in de plint zijn uitgevoerd met cannelures. Dit is een verwijzing naar de oorspronkelijke brutalistische gevelelementen. Het betonmengsel van de elementen met cannelures is exact hetzelfde qua kleur en toeslag als dat van het gepolijste beton. De elementen zijn gemaakt in een mal waarin latten zijn geschroefd en gelijmd op de juiste positie. Na het ontkisten zijn de elementen gestraald en gezuurd om de juiste uitstraling te krijgen.

De metalen schalen die in de verjonging van de kolommen is geplaatst, zijn van messing. Het messing is gepatineerd, waardoor het op brons lijkt. Er is gekozen voor messing omdat dit materiaal beter te bewerken is dan brons. Voor het passend maken van de messing schalen zijn 2 dummie kolommen gemaakt met de 4 inkassingen met elk een andere afmeting. Deze kolommen zijn naar de werkplaats van koperslager Julius Baller gebracht. Julius Baller heeft op de betonnen mallen de messing schalen gemaakt. Aan de achterzijde van de messing schalen zijn pinnen gelast, die vallen in sparingen achter de inkassing van de schaal in het beton. Deze gaten zijn opgevuld met een speciale mortel waarin de messing schalen zijn gedrukt. Daarnaast is elke schaal ook mechanisch geborgd aan de betonnen kolom. Dit proces van plaatsen van de messing schalen is in het werk gedaan.

Gevelmontage

In de oude situatie waren de betonnen geveldelen gemonteerd op de vloerrand. Dit principe is ook toegepast voor de nieuwe gevel. Aluminium kozijnen, gevelkolommen en betonnen gevelbanden zijn gemonteerd op stalen ankers die afdragen naar de vloerrand. Op de thermische en waterkerende lijn is een MavoTrans plaat gemonteerd. Hier tegenaan is het tweede deel van het anker gemonteerd. De kolom en gevelbanden worden gemonteerd op het anker en vastgezet met stalen platen, moeren en bouten. De knoop is zo ontworpen dat alle bevestigingsmiddelen uit het zicht zijn.

Ter plaatse van de rondingen in de gevel zijn de oorspronkelijke vloerranden afgezaagd om de ronding op de hoeken te maken. De horizontale betonnen gevelbanden hebben ter plaatse van de afgeronde gevel een afgeronde achterzijde. Ze volgen hiermee precies de kromming van het glas en het kozijn. De horizontale delen steunen op een kolom die doorgestapeld is vanuit een nieuwe eigen fundering (poer).

Duurzaamheid

De betonnen gevelelementen representeren het brutalistische karakter van het oorspronkelijke ontwerp. De grote tegenstelling met het oorspronkelijke ontwerp is de hoeveelheid beton. Elk betonelement speelt met het thema verjonging, dus vermindering van materiaal. De vloerbanden worden per verdieping dunner en de kolommen hebben een uitsnede die per bouwlaag een grotere radius kent. Detail en textuur sublimeren beton als brutalistisch bouwmateriaal, maar met een scherp oog voor de hoeveelheid.

Het gebouw is ontworpen aan de hand van verschillende vooruitstrevende benchmarks, denk aan BREEAM, WiredScore, RE\DEFINE en tevens Net Zero Carbon, waarmee wordt gecommitteerd aan de klimaatdoelen van het Paris Agreement. Met als resultaat een ‘best in-class-office building’.

Sebastian Zwart, portfolio manager bij Nuveen Real Estate: “Toen we begonnen aan de ontwikkeling van dit pand wilden we een best-in-class kantoor opleveren. Het ingetogen gebouw in deze groene omgeving ligt precies tussen de drukte van de Zuidas en een rustige woonwijk. De nieuwe technologie voor energiezuinigheid en welzijn voldoet aan de vraag van hedendaagse gebruikers. Na een intensief proces van 18 maanden is het gebouw nu klaar voor de volgende fase.”